Design Visualization

Over the years, I have evolved from providing 2D Construction Documents for obtaining Building Permits to introducing varies formats for presentation and documentation.

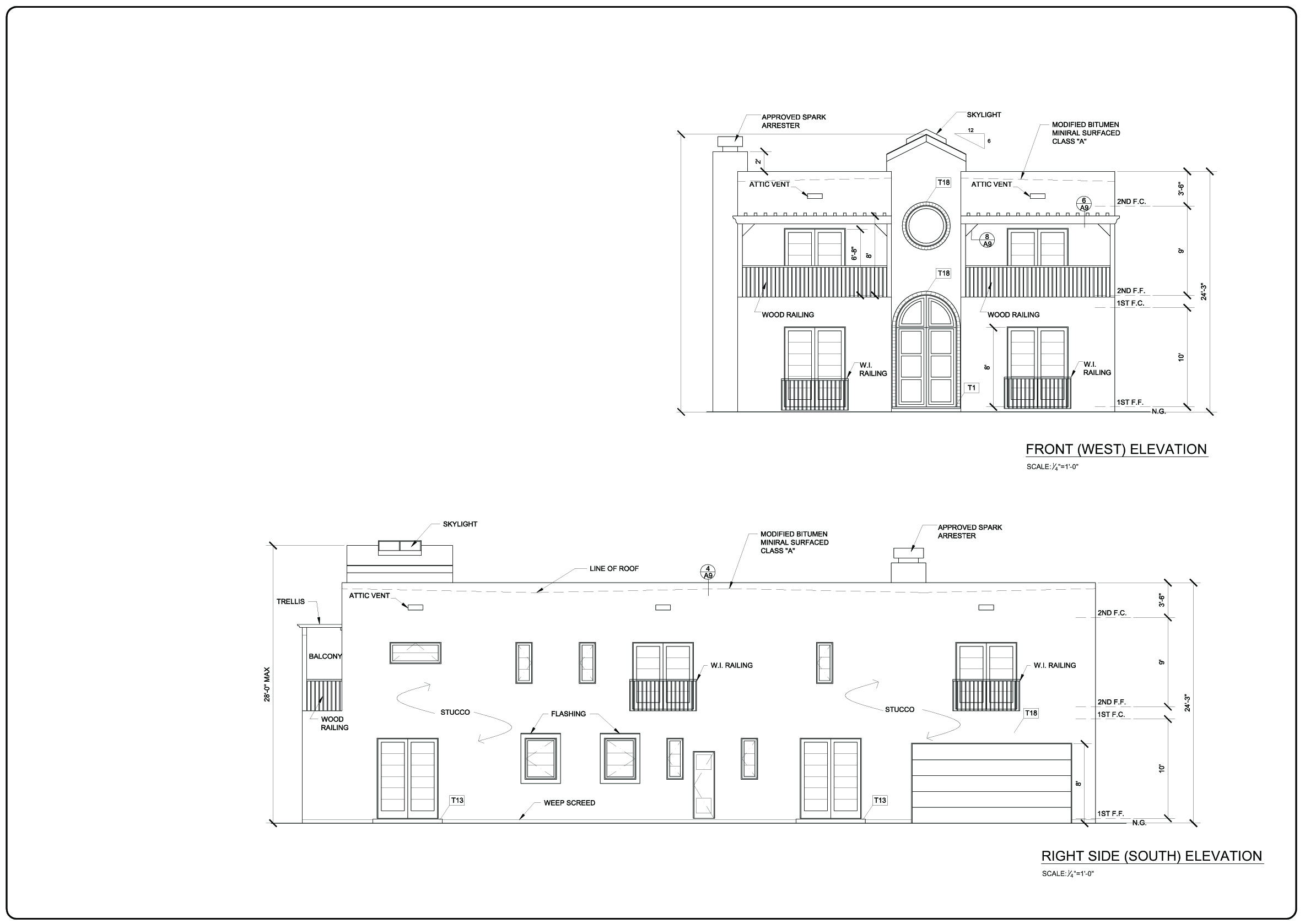
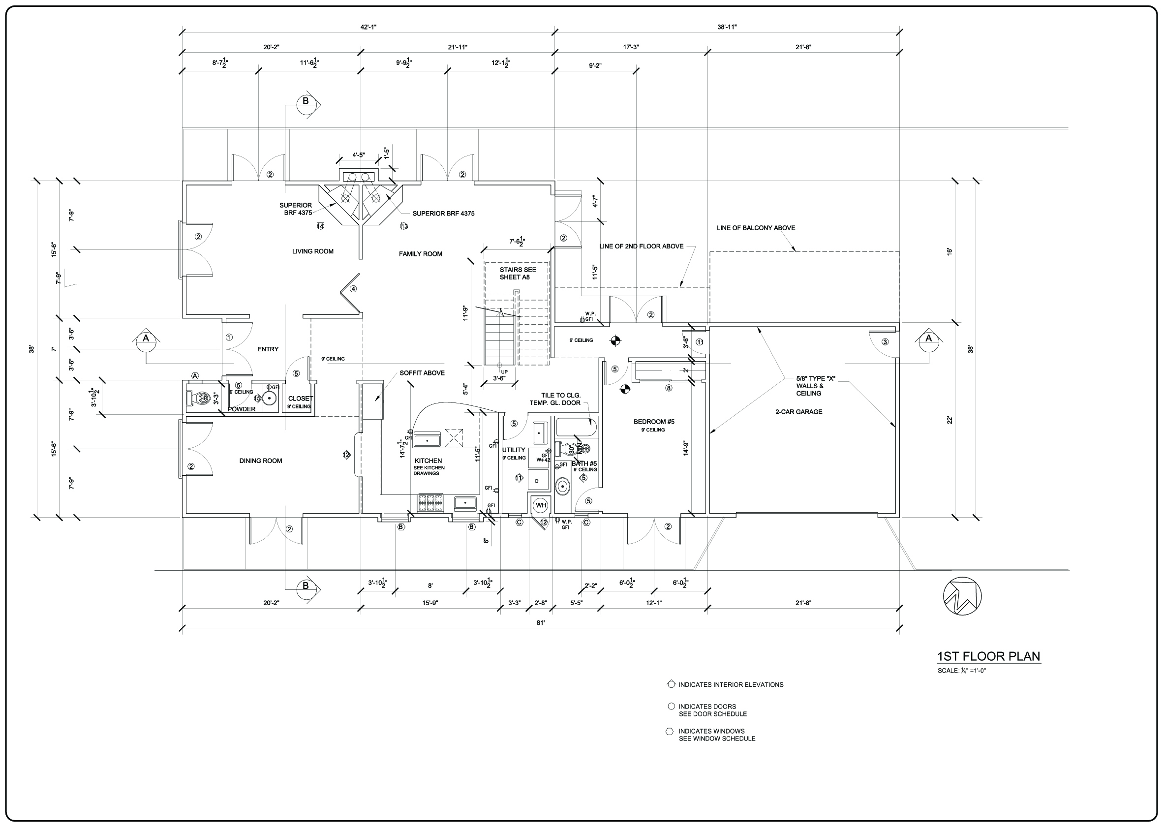
Here is an example of a partial set of construction documents for new construction:

Designed by Erich Stein Architect
Designed by Erich Stein Architect
Designed by Erich Stein Architect
Designed by Erich Stein Architect

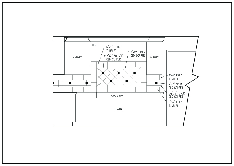
Besides Construction Documents, I also provide drawings for interior design uses such as furniture plans, kitchen design plans, bathroom design plans, tile layouts, etc.

Designed by Genoveve Serge Interior Design
Designed by Genoveve Serge Interior Design

I also do colored plans and material boards:

Designed by Genoveve Serge Interior Design

I started using Google SketchUp to provide basic 3D presentation. This is an effective way to help clients visualize the not-yet-existing spaces. The format can be either still images or walk-through videos.

Designed by Geometrix Interiors

(Designed by ARKIECO)

(Designed by Geometrix Interiors)

(Designed by Michelle Chiang)

When I was in college, I learned how to draft and sketch by hand. I enjoyed it.

In the real world, I sketched just to communicate ideas. It was nothing formal. Last week, at the last minute, I had to do some sketches for Wendy Weiner Interior Design for a presentation. This is what we ended up with:

Designed by Wendy Weiner Interior Design

I am so out of practice! I need to get back to hand sketching.

Not everyone is cut out to be an interior designer although I had hoped to become one. I am glad to have found my niche working in this industry.

CAD Class Presentation

My former CAD (Computer Aided Drafting) instructor, Julian Inchaurregui of West Valley Occupational Center, invited me to speak to his architectural CAD class as a former student and someone working in the design industry. I put in a lot of thoughts and even prepared flash cards. I want to document this in writing while it is still fresh in my mind. Since this is in written form and I am doing this after the face, it is not exactly how I presented.

Julian and I
11:30, March 8, 2012
Room 304
WestValleyOccupational Center
Winnetka,California

I was in this program from 2003 – 2004. Since then, I have started my own business providing presentation and documentation to design professionals.

Today, I want to share with you my personal journey, talk to you about self assessment, and marketing and branding for yourself. I will give you some business tips and advice at the end. Hopefully you will learn from my mistakes.

I am from Taiwan and came to the States for college education. I got my bachelor’s degree in interior design from California State University, Northridge. While in school, I have interned for a hospitality design firm inWest Hollywood. Upon graduation, I interned for an interior designer firm and showroom in Westlake Village. I later worked for my college professor and her husband for two years in Santa Monica doing home renovation and interior design. My next job was kitchen and bath designer at The Great Indoors. After a year, I realized the retail business was not right for me. I quit the job and enrolled in the CAD program here (West Valley Occupational Center). A few months in the program, because my design background and solid manual drafting skills, I started getting small drafting job. Now I have my own business catering to interior designers, architects, engineers, contractors, property management companies, developers, home owners, and business owners.

How did I figure out to do what I do? Once I started working, I found there are many tasks I don’t enjoy, but I still like the industry. Although I did not plan on this, I ended up getting a lot of work for drafting. I discovered by providing supporting services, I can work on high-end residential and large commercial projects. Most architects and designers let me be involved in the design process. This discovery took me a few years. I wish I done a self-assessment sooner and focus my energy on getting work I like.

An easy way to do a self assessment is to create two columns on a piece of paper. One column is for tasks you like and want to develop more skills, and the other column is for tasks you wish to avoid.

My Self-Assessment Chart

Now you have a list of tasks you enjoy, let’s start considering career options in the field of your choice. For example, in the interior design field, you can be a designer, an office assistant, a drafter, a renderer, a photographer, or a sales representative. All of these positions allow different levels of creativities and require different skills. Looking at my self-assessment chart, no wonder I started moving towards behind-the-scene tasks.

What is marketing? Why should we do marketing? What if you work for a company and have no contact with clients? Marketing or branding starts with each individual. Every drafting project is unique, and we as drafters do not need to be all the same. We need to create our own celebrity and distinguish us from others. We are not machines. We need to establish ourselves as real people and connect with our clients. Through branding, people will learn my style, my interests, and my specialties. This way, I attract only the right clients. No one can guarantee your employment will last forever. That is just the nature of the business. If you continually build a professional reputation, you can easily flow from one job to another. In this day of age, you need to have an online presence. Do you know how many Michelle Chiang there are on the Internet? I need to work extra hard. Most of you shouldn’t have this problem.

How do we market? First, you need to target a specific clientele. Then you start prospecting and networking. In my case, I am targeting small interior design firms as my clients, and I attend seminars and industry events either meeting new designers or building a relationship with showrooms. I have had been referred by sales consultants from showrooms. It is important to create value for your services. Clients want to know what is in it for them from working with you. Being unique and memorable increases your chance of being hired. It can be a non-design-related skill you have, or a signature item you hand out, or a specific way of working. Playing the piano is my hobby. It had allowed me to connect with people outside the design circle and help me to stand out. I have actually met a designer through playing the piano for a friend’s event and had worked with the designer on a few large projects.

Here are some tools for branding and marketing:

  • Business cards
  • Information sheets / brochures – This replaces traditional resume. My information sheet includes my bio, services I provide, and testimonials from clients. I do revise and update the information as needed and cater to a specific group. (Information Sheet Sample)
  • Portfolio – Printed, on-line, and on your electronic device you carry with you all the time.
  • Social media – Facebook, Twitter, and LinkedIn are three major social media websites.
  • Website / blog – I use my blog to express myself and establish my unique style.
  • Promotional gifts – I had my friend made me custom handmade soaps that matches my business card design and with the scent of my choice.
  • Email newsletters – I send out a list of industry events to designers on my mailing list. This is my way to stay in touch and showing I am interested in working with them.

Now, let me give you some general business tips & advice:

  • Invest in yourself & your business – I attend seminars and industry events whenever I can. It is important that my clients know I am up to date with what is going on.
  • Be a people person – No project is done by one person. You will need to be able to communicate and collaborate with others.
  • Be professional – It is important to be dependable and trustworthy. Your appearance also plays a big part. Remember, people don’t see you as just you. You are representation yourself, your company, your boss, and your colleagues.
  • Get support / join professional organizations / make friends – Belonging to an organization has been very beneficial for me. I also keep in touch with friends in the business to support and help each other.
  • Give back – Think about how much help you have received along the way, and give back however you can.

This is all I have today. Thank you all for being here. If you have any question or comment, I can be contacted by phone, email, Facebook page, and blog.

My Flash Cards

Piano Placement

Following my last post on Fantasy Pianoslet’s look at placing a piano in a room based on what I learned during the Steinway presentation I attended.

It is important to know what kind of care a piano needs. Steinway has posted some clear instructions on their website. Some important room conditions to consider before figuring out the placement for the piano are:

  • Controlled temperature and humidity: The most favorable environment for your piano is a relative humidity ranging between 45% and 70% and a constant temperature of approximately 20˚C. Sudden fluctuations in temperature must be avoided as the tuning and regulation might be influenced negatively.
  • Never in direct sunlight: preferably against the inside wall of a room and not close to windows and outside doors. Sunlight fades and dry out the wood.
  • Never next to stoves, radiators, fireplaces, or heating outlets: heat will dry out and damage the wood.
  • Never in front of, on top of, or under air vent!

With a grand piano, some people prefer looking at the keyboard end while others like the side the lid opens to or the ‘tail’ end. Most of the time, we are limited in the ways we can place the piano due to the room layout.

I found some photos from HOUZZ as visual aids.

These two photos show the pianos facing different sides to the seating arrangement. It is not preferred to have the piano next to the fireplace, but it is not a problem if the fireplace is not being used. In the first photo, it looks like a false fireplace front with mirror in the opening.

 

This is an example of what not to do. The piano is next to large windows and a working fireplace.

 

I think it is just me. I do not like having accessories on the piano.

 

I really like this one with bookshelves around the piano. It is convenience to have the music books close by.

 

If the area has a high ceiling, add some soft, sound-absorbing surface material to soften the sound.

 

In this modern interior, the white wall provides such a dramatic background for the black piano.

 

Theses two photos showing creating an alcove for the piano. I think it makes the pianist feel important. When not in use, the grand piano is like an art piece being showcased.

 

It is important to have 2′ – 3′ for the chair in front of the piano. I prefer to have the pianist facing or have his/her side to the audience. For a solo performer, it is important to engage the audience. It is also because I feel uncomfortable having my rear facing people.

The last photo is personally my favorite way to place a piano.

This is my dream studio!

Fantasy Pianos

As a pianist, I was so excited when designer Angela Radley invited me to the ASID Los Angeles Chapter event at Steinway Piano Gallery in West Hollywood for a presentation titled “Piano Knowledge for the Design Professional”!

I started taking piano lessons when I was little. Limited by the space, I have never owned a grand piano. It was amazing to see how pianos can be custom-designed to have different ‘looks’. Most of us can only imagine owning one of those unique beauties. Here are some of them from the Steinway website: (clicking on the images will take you to the product pages for more details.)

Henry Z. Steinway
Henry Z. Steinway
Rhapsody
Rhapsody
150th Anniversary
Sound of Harmony
John Lennon
The S.L.ED by Karl Lagerfeld

There are many more gorgeous pianos on the Steinway website. If you do a search on the Internet, you can find more custom pianos done by Steinway & Sons but not on the official website.

The piano I absolutely love is the beautiful antique piano in the 2007 Taiwanese film “Secret”. I don’t know the maker of the piano, and I don’t think it is a real antique.

(Photo from Mr.J Facebook Page)

The piano is now in Mr.J French-Italian Restaurant in Taipei, Taiwan. The decoration of the restaurant is base on the movie.

I would love to have projects that incorporate pianos into the design. It would be awesome if I get to design a custom piano and the space it is in. What’s my dream piano for myself? I am not greedy. A basic Yamaha baby grand will be wonderful.

Yamaha 5' Grand Piano

Themed Restrooms

Chung-Yo is a department store in Central Taiwan. Its themed restrooms had gotten lots of attention and won many awards.

(1)

(2)

(3)

(4)

(5)

(6)

(7)

(8)

(9)

(10)

(11)

(12)

(13)

(14)

(15)

Do you have a favorite?

(All photos are taken from Chung-Yo website.)